Ausstattung
Serviceliste
-
WOHNZIMMER
(20m²), großes Ecksofa, Schaukelstuhl, Kommode, TV SAT Anlage, Radio, DVD-Player, Holzkaminofen,Tisch
-
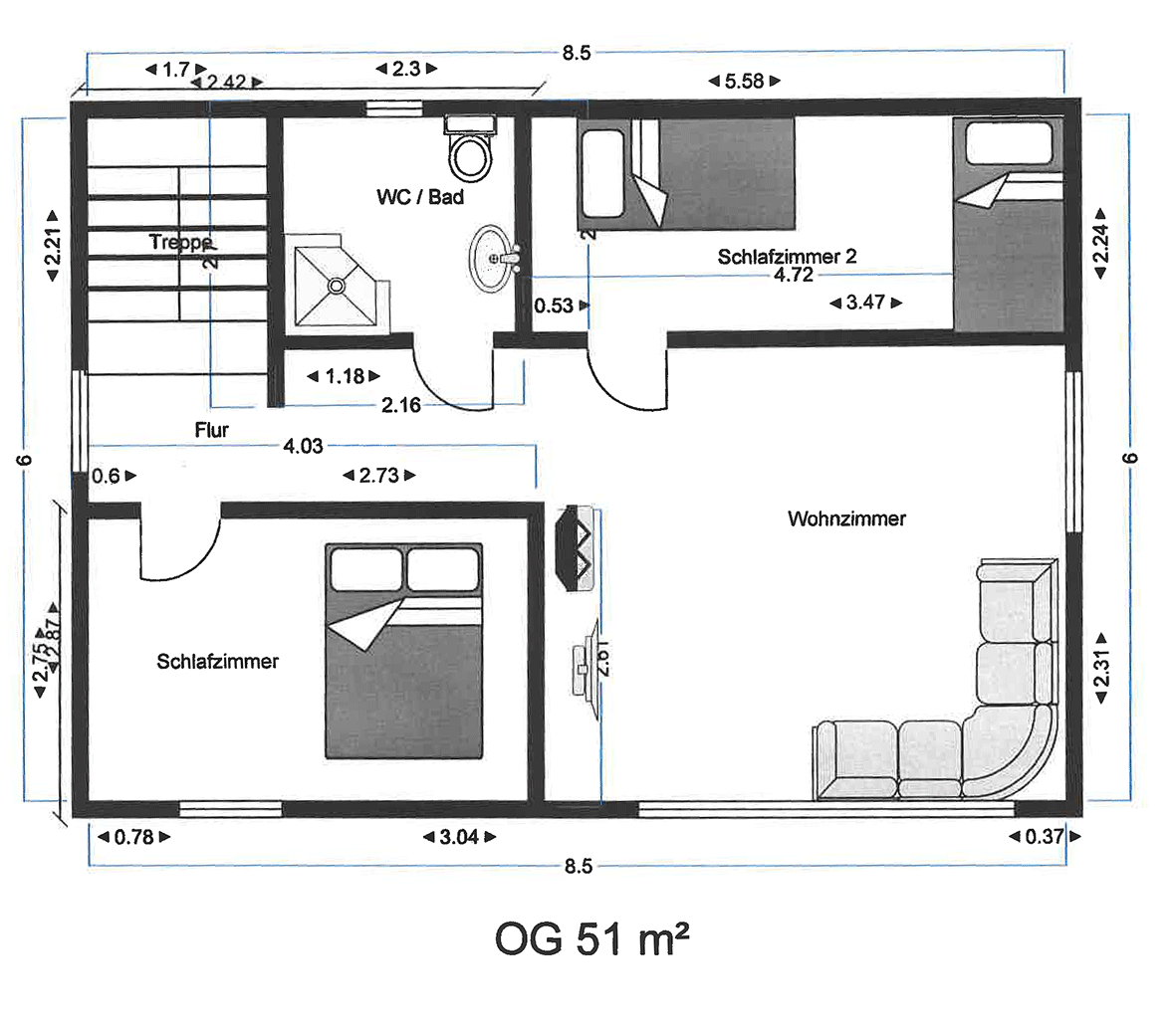
SCHLAFZIMMER 2
Schlafzimmer (12m²), 2 Einzelbetten (80x200),Bettwäsche und Handtücher,
Kleiderschrank
-
WOHNKÜCHE
Küchenzeile mit Cerankochfeld, Umluftbackofen, Kühlschrank mit Tiefkühlfach,Geschirrspülmaschine, Radio und CD Player,
Kaffemaschine, Wasserkocher, Toaster,Microwelle,Töpfe, komplette Geschirrausstattung für 4 Personen,Tisch mit zwei Sitzbänken
Erdgeschoss • 21 m²
-
BADEZIMMER
(5 m²) WC, Waschbecken, Dusche (bodengleich), Handtücher, Fußbodenheizung, Garderobe, Spiegel,
-
WC separat
Handtücher, Spiegel, Waschbecken
Erdgeschoss • 2 m²
-
WIRTSCHAFTSRAUM
5 m², Waschmaschine, Wäschetrockner, Wäscheständer, Staubsauger, Reinigungsmittel
-
GARTEN
Garten (500 m²) mit Terrasse (15m²)
mit Gartenmöbeln, Holzkohlegrill, Sonnenliegen, Sonnenschirm, Deckchair, diebstahlsichere Abstellmöglichkeit für Fahrräder etc.


